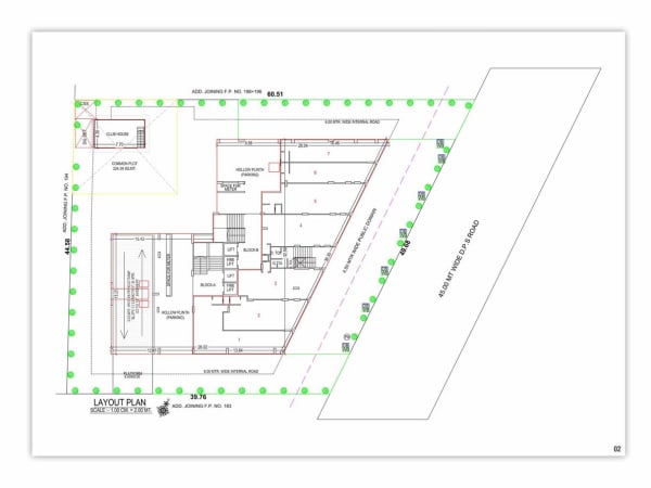
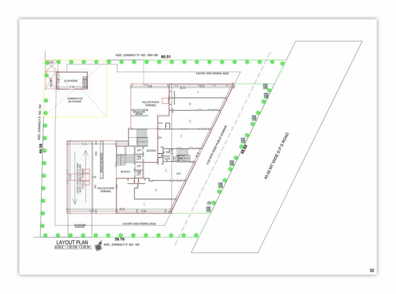
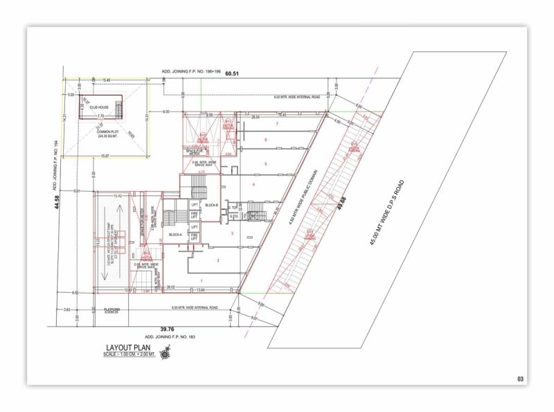
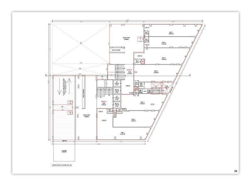
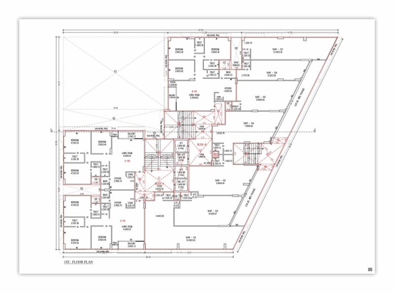
Labh Seventy 4 is a mixed development real estate project developed by Labh Infratech Private Limited, strategically located at Labh Seventy 4, Block Survey No. 822, F.p. No. 195 , Palm Arbania Cross Road, Gandhinagar , Gandhinagar, 382421. This RERA-registered property (Registration No: PR/GJ/GANDHINAGAR/GANDHINAGAR/Gandhinagar Municipal Corporation/MAA14668/100125/301129). Luxurious Living
The project is professionally designed by Harsh Manishkumar Raval and engineered by Sagarkumar Chandubhai Patel, ensuring quality construction and adherence to all regulatory standards. For more information about this property, interested buyers can contact Labh Infratech Private Limited directly at 9227121002.



















