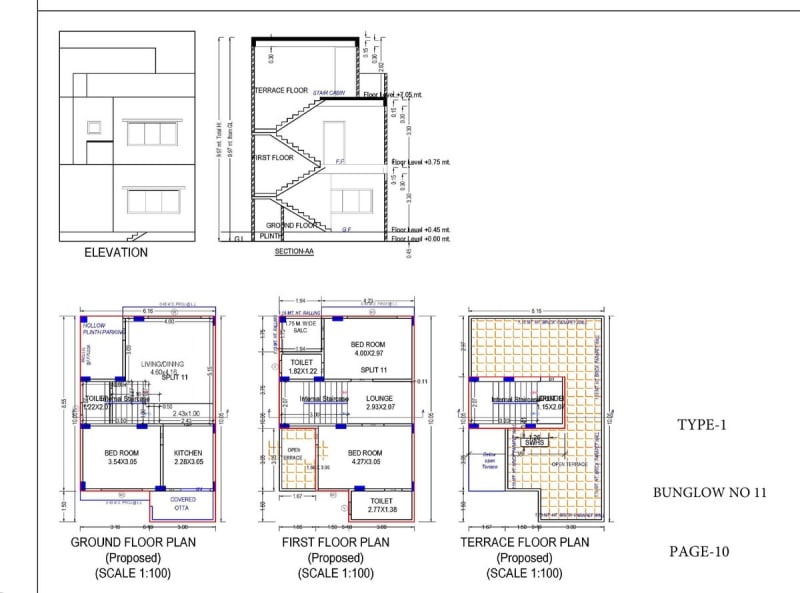
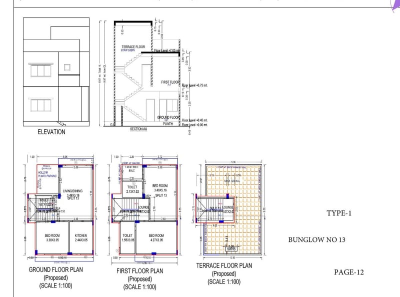
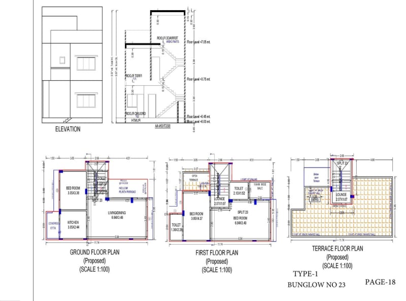
Maruti Floraa- 5 is a residential/group housing real estate project developed by Bhanushri Realities, strategically located at Maruti Flora 5, Nr. Littale Angels International School, Baliyadev Temple Cross Road, Utkantheshwar Mahadev Road, Gandhinagar, 382305. This RERA-registered property (Registration No: PR/GJ/GANDHINAGAR/DEHGAM/Ahmedabad Urban Development Authority/RAA15904/290925/311227). 3 Bhk Bunglows
The project is professionally designed by Urvashi Lalitkumar Tuli and engineered by Bhavikkumar Raghavbhai Sudani, ensuring quality construction and adherence to all regulatory standards. For more information about this property, interested buyers can contact Bhanushri Realities directly at 9898288490.



























