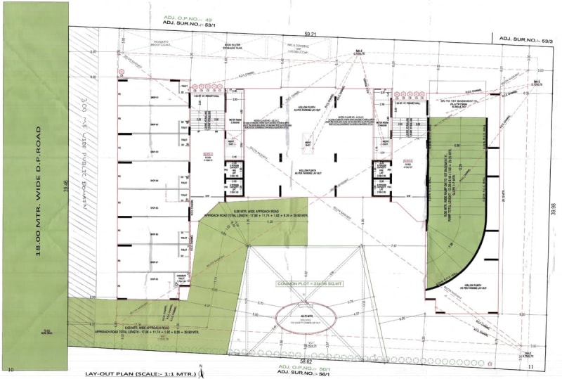
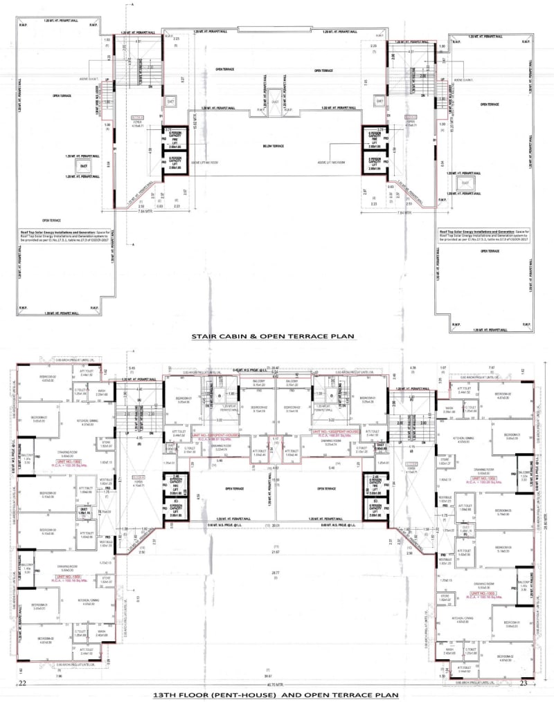
Meera Bliss is a mixed development real estate project developed by Krishna Developers, strategically located at Meera Bliss, Nr. Juna Koba Metro Station, Opp. Koba Gov. Aniamal Hospital, Koba, Gandhinagar, 382421. This RERA-registered property (Registration No: PR/GJ/GANDHINAGAR/GANDHINAGAR/Gandhinagar Municipal Corporation/MAA14464/021224/310727). Residential Flats And Shops
The project is professionally designed by Urvashi Lalitkumar Tuli and engineered by Pravinchandra Raghurambhai Thakkar, ensuring quality construction and adherence to all regulatory standards. For more information about this property, interested buyers can contact Krishna Developers directly at 7698880001.




















