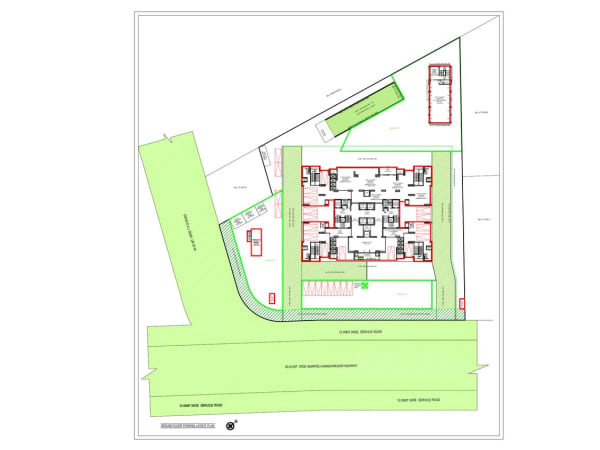
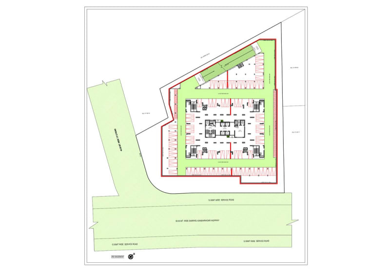
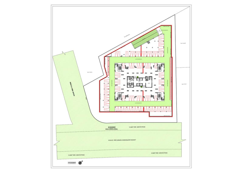
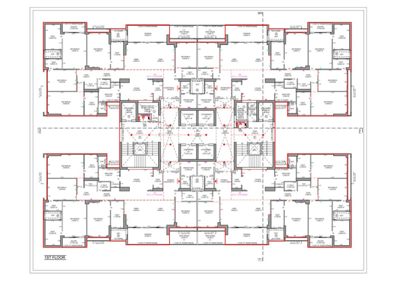
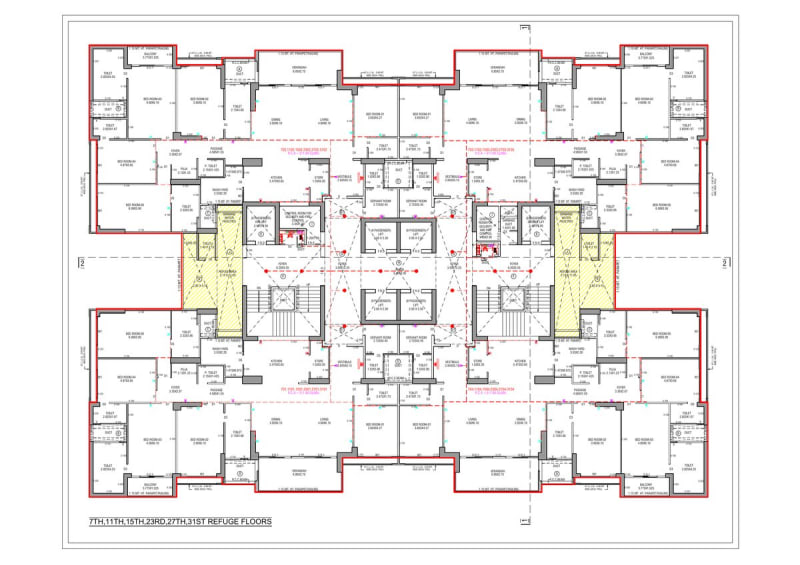
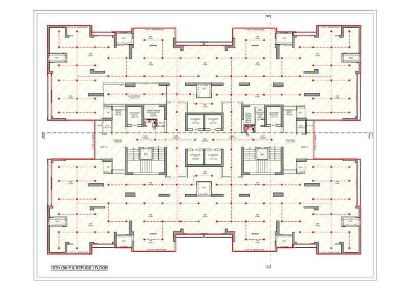
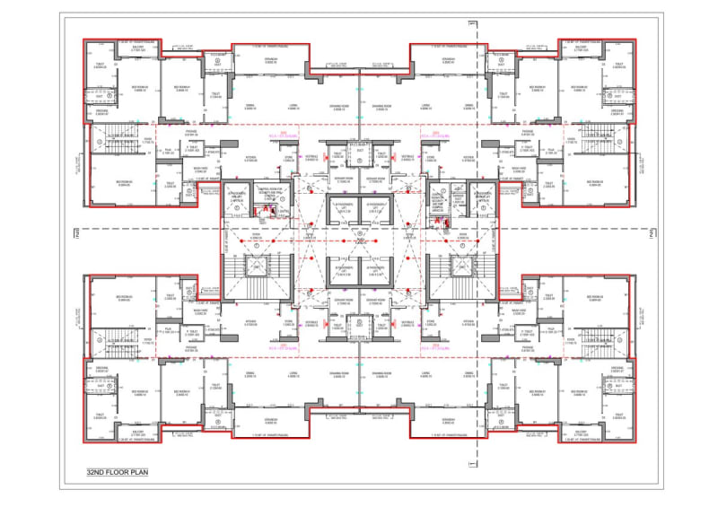
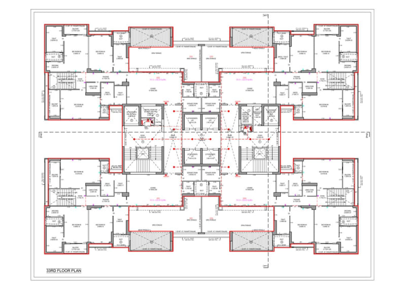
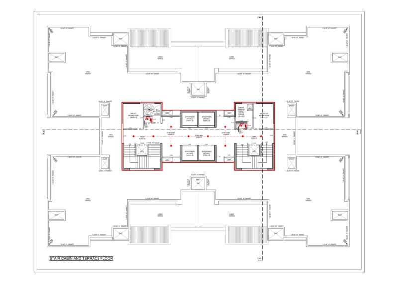
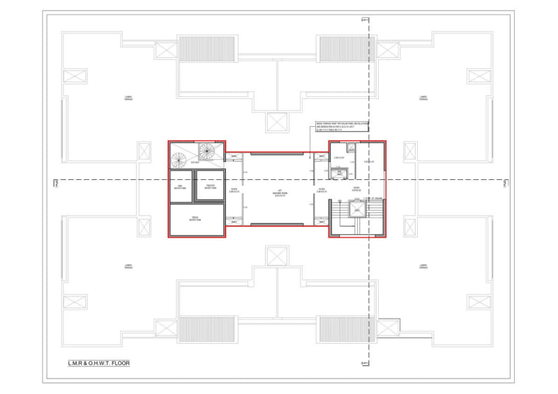
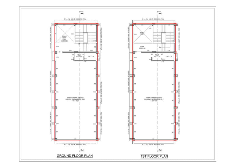
Riviera Crown is a residential/group housing real estate project developed by Goyal And Co. (Const.) Private Limited, strategically located at Near Adani Shantigram,, Khoraj, Gandhinagar, 382421. This RERA-registered property (Registration No: PR/GJ/GANDHINAGAR/GANDHINAGAR/Gandhinagar Municipal Corporation/RAA16608/160326/311230). Residence Flat , Near Adani Shantigram,khoraj
The project is professionally designed by Apurva Amin and engineered by Naresh Kalyanbhai Shah, ensuring quality construction and adherence to all regulatory standards. For more information about this property, interested buyers can contact Goyal And Co. (Const.) Private Limited directly at 8980013923.























