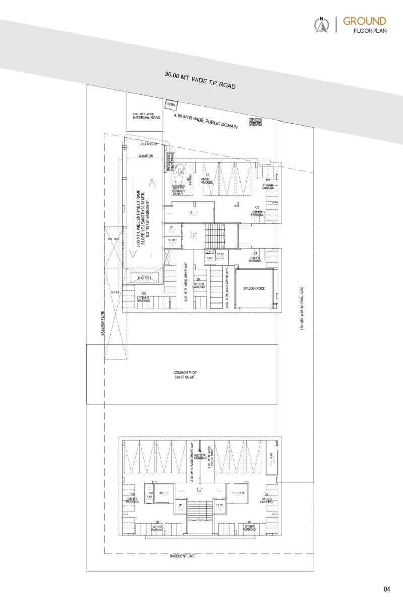
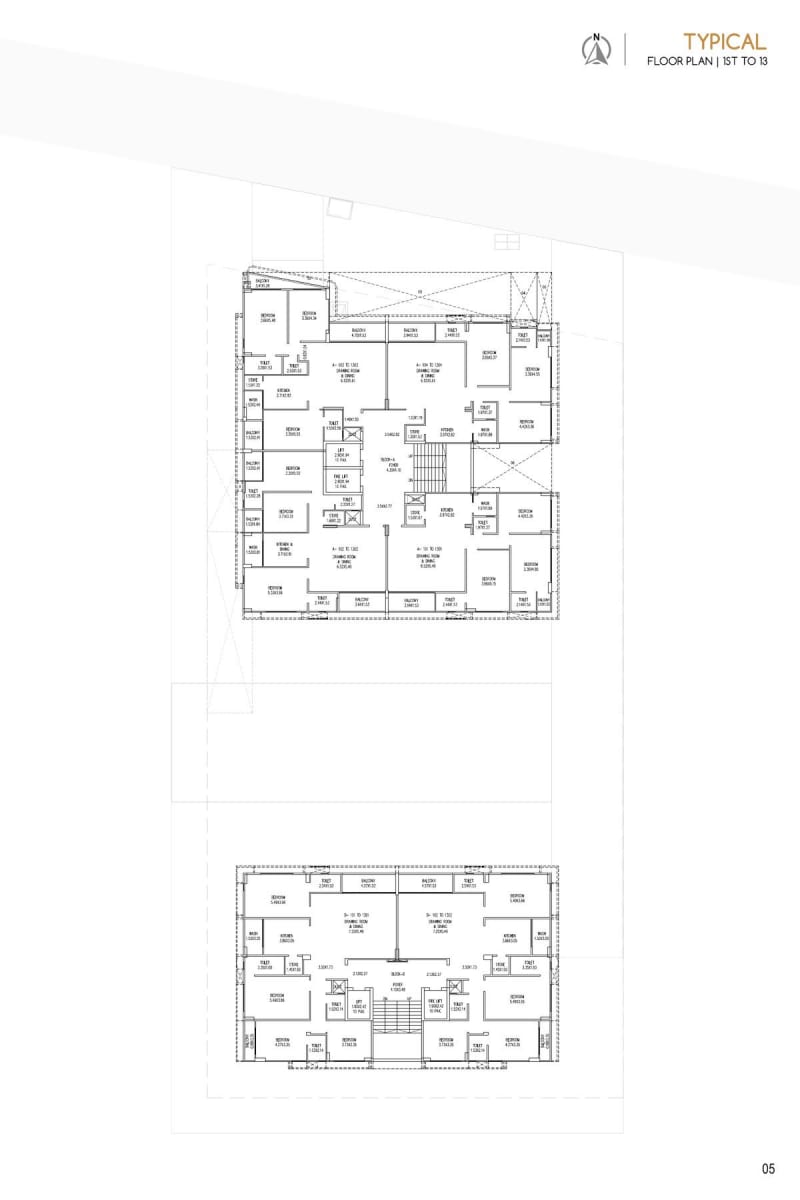
Soham Primrose is a residential/group housing real estate project developed by Soham Infra Build Private Limited, strategically located at Opp. Kamlam Bjp Office, , Near Helipad, Koba, , Gandhinagar, 382428. This RERA-registered property (Registration No: PR/GJ/GANDHINAGAR/GANDHINAGAR/Gandhinagar Municipal Corporation/RAA16176/041225/300628). 78 Residential Units
The project is professionally designed by Suresh Pratapji Suthar and engineered by Vipulkumar Jivanlal Patel, ensuring quality construction and adherence to all regulatory standards. For more information about this property, interested buyers can contact Soham Infra Build Private Limited directly at 9925150765.

















