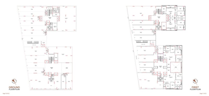
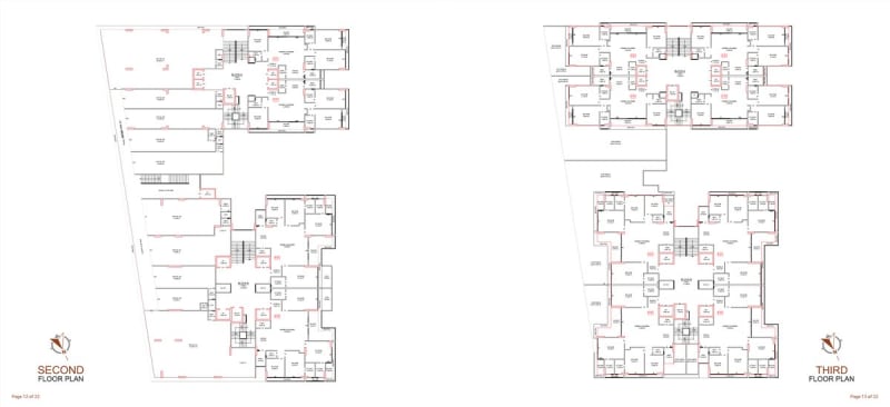
The Overa is a mixed development real estate project developed by Ayodhya Developers, strategically located at The Overa , Sr. No. 48/2, T.p. No. 2, F.p. No. 24 & 44, Pancham Bungalows, Pancham Circle, Koba, Gandhinagar - 382421, Gandhinagar, 382421. This RERA-registered property (Registration No: PR/GJ/GANDHINAGAR/GANDHINAGAR/Gandhinagar Municipal Corporation/MAA14557/211224/300628). 2 & 3 Bhk Lavish Flats & Shops
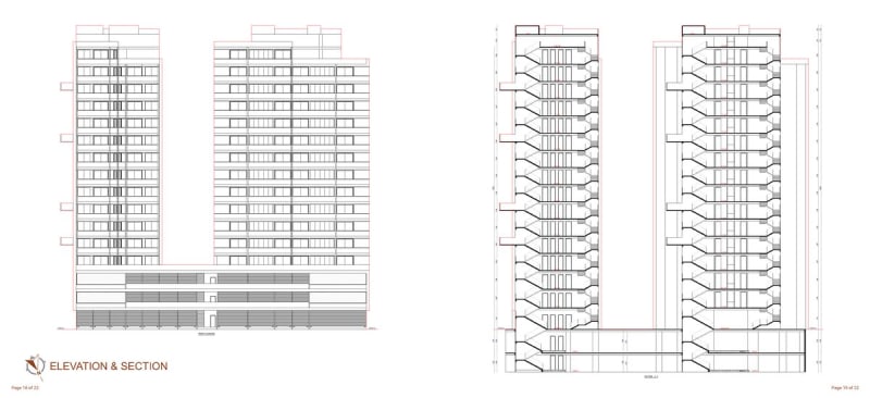
The project is professionally designed by Bhavik Jayantilal Sheladiya and engineered by Satyamkumar Rameshbhai Patel, ensuring quality construction and adherence to all regulatory standards. For more information about this property, interested buyers can contact Ayodhya Developers directly at 9825024644.














